物件番号 3361885 物件種目 倉庫
事前連絡無しの現地訪問はご遠慮ください
★おすすめポイント★:駅近×二方道路に面する好条件物件。駐車スペース付きで、出入りもしやすい魅力的な立地です。
賃料(月額) 165万円(消費税未確認)
坪単価 5,572円
所在地 大阪府東大阪市衣摺2丁目
概略地図を見る
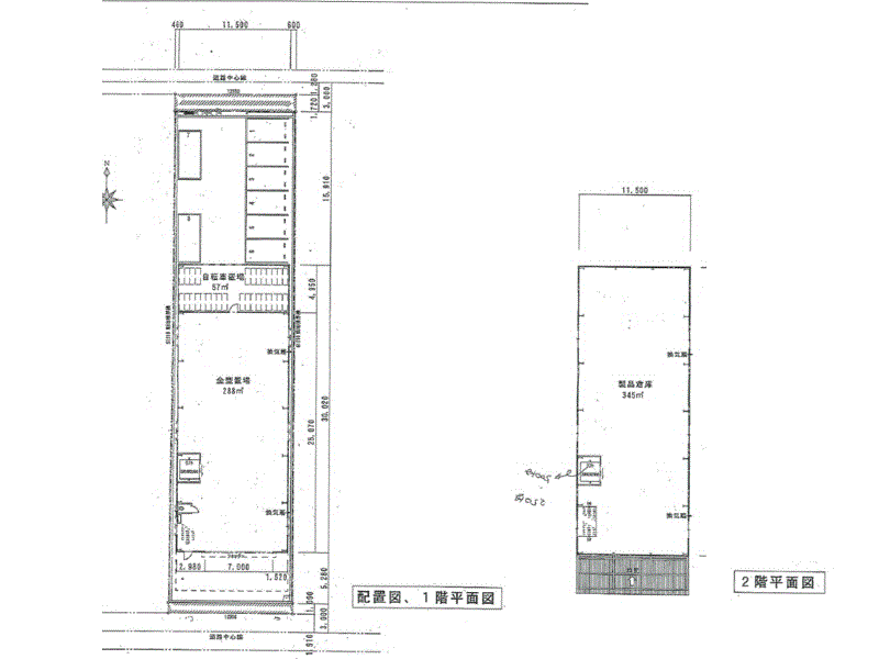
面積 建物面積:978.76m²/296.07坪
敷地面積:687.77m²/208.05坪
登録日 2026年2月1日
沿線/駅 おおさか東線/衣摺加美北駅 徒歩10分
高速道路出入口 近畿自動車道 八尾から約3km
保証金等 礼金:2ヶ月
敷金:2ヶ月
管理費
構造/階数 鉄骨造/3階建ての1~3階部分
各階面積 1F:288.3m²/87.21坪 2F:345.23m²/104.43坪 3F:245.23m²/74.18坪
接道状況 二方 北 4m 南 6m
駐車場
引渡し 2026年04月下旬予定
築年月 2007年7月
用途地域 準工業地域 用途地域について
都市計画 市街化区域
路線価 路線価
建物登記
建築確認
設備関連 リフト
周辺状況 *近隣民家有
*土曜・祝日利用可
*?型トラック搬入可
**建ぺい率60%・容積率200%
*準防火地域
その他 *保険等:要2年25,000円
*保証会社加入要 総賃料の100%
前テナント様業種
取引形態 仲介
この物件に対する問い合わせ
複数の物件を問い合わせされる場合は、お気に入り登録からの一括問い合わせをご利用ください。
※「①」や「㈱」等の機種依存文字は文字化けすることが多いのでなるべくお控えください。

お気に入り一括問い合わせはこちらから
貴社名
担当者名とどちらか必須入力
ご担当者名
会社名とどちらか必須入力
業種
必須入力
移転区分 必須入力
お電話番号
必須入力
E-mail
必須入力
お問い合わせ内容
個人情報の取り扱いをご確認ください。